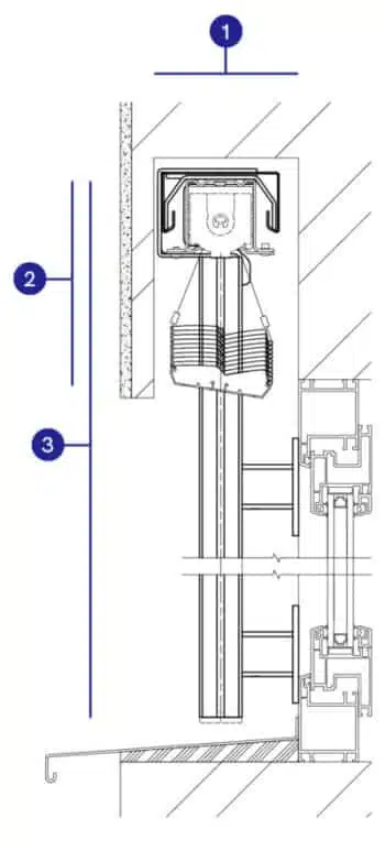
Samonosný systém NEVA STL slúži k rýchlej montáži vonkajších žalúzií do pripraveného priestoru v stavbe.
Žalúzia tvorí s nosnými držiakmi a vodiacimi profilmi jeden celok, ktorý môžete po vybalení hneď pripevniť.
Samonosný systém STL je určený pre žalúzie s vodiacimi kolíkmi. Namontujete ho do ostenia alebo do rámu okna. Pri tomto samonosnom systéme nie je možné spájať viac žalúzií na 1 motor.
V prípade potreby vám radi vyrobíme aj zosilnený systém STL až do šírky 4 metrov.

Potrebujete sa poradiť? Radi by ste naživo videli vzorky žalúzií alebo reálne farby lamiel? Poskytneme Vám všetky informácie, ktoré sú dôležité pri výbere a montáži vonkajších žalúzií. Dohodnite si stretnutie alebo si nechajte vypracovať nezáväznú cenovú ponuku.

Výhody samonosného systému STL

Rýchla montáž

Samonosný systém vám ušetrí čas i náklady na montáž. Tvorí s žalúziami jeden celok, ktorý montéri na stavbe nemusia skladať, ale rovno ho upevnia.

Variabilita

Systém namontujete do pevného ostenia alebo na rám okna. Vďaka dvojitému vodiacemu profilu môžete žalúzie dokonca spájať.

Zosilnený STL systém

NA prianie vyrobíme systém STL aj vo variante so zosilneným horným profilom a vystuženými nosnými držiakmi. Vďaka tomu žalúzie zatienia väčšinu plochy.

Technické parametre STL

STL štandardný variant

STL zosilnený variant

Klimatizácia na kľúč
Prehľad ochrany osobných údajov

Tato webová stránka používa cookies

Na tejto webovej stránke používame cookies na zlepšenie našej stránky, zaistenie jej funkčnosti a s vaším súhlasom aj k zaisteniu vašej spokojnosti pri jej používaní, personalizáciu zobrazovaného obsahu a reklamy, a pre analýzu návštevnosti webovej stránky a spôsobu jej využívania.

Informácie o tom, ako náš web používate sú s vašim súhlasom zdieľané s partnermi pre sociálne média, inzerciu a analýzy. Títo partneri údaje môžu skombinovať s ďalšími informáciami, ktoré ste im poskytli, alebo ktoré získali prostredníctvom toho, že používate ich služby. Niektoré cookies sú umiestnené službami tretích strán, ktoré sa objavujú na našej webovej stránke.

Kliknutím na tlačítko „Rozumiem a súhlasím“ vyjadríte súhlas s ukladaním a využívaním cookies pre všetky vyššie uvedené účely a s odovzdávaním údajov o správaní sa na webovej stránke pre zobrazení sa cielenej reklamy na sociálnych a reklamných sietiach na ďalších weboch. Tento súhlas je dobrovoľný.

Kliknutím na tlačítko „Len potrebné cookies“ odmietnete ukladaniu a využívaniu cookies, ktoré nie sú potrebné pre správne fungovanie tejto webovej stránky a jej funkcií, ktoré sa rozhodnete využívať.

Pomocou tlačítka „Podrobné nastavenie“ môžete zvoliť spôsob pre aké účely ukladania a využívania cookies poskytnete váš súhlas.

Váš súhlas s nastavením ukladania cookies ukladáme po dobu jedného roku. Toto nastavenie môžete kedykoľvek upraviť.

Bližšie informácie o ukladaní a využívaní cookies našou webovou stránkou, o dobe ukončenia platnosti jednotlivých cookies a o Vašich právach v súvislosti so spracovávaním cookies nájdete v prehlásení o cookies a v Základných zásadách spracovania osobných údajov.